Горкинско-Ометьевский лес
| Горкинско-Ометьевский лес | |
|---|---|
| тат. Горки-Әмәт урманы | |
Главный вход в Горкинско-Ометьевский лес со стороны проспекта Победы (июль 2019) | |
| Основная информация | |
| Площадь | 66,45 га |
| Дата основания | 25 декабря 2016 |
| Статус | Особо охраняемая природная территория местного значения |
| vk.com/kazanles | |
| Расположение | |
| 55°46′ с. ш. 49°13′ в. д. | |
| Страна | |
| Субъект РФ | Татарстан |
| Город | Казань |
| Район города | Советский район |
Парк «Горкинско-Ометьевский лес» (тат. «Горки-Әмәт урманы» паркы) — самый крупный по территории парк Казани. Создан на основе двух внутригородских лесных массивов: расположенного с южной стороны Горкинского леса и с северной стороны — Ометьевского леса. Оба лесных массива изначально были разделены друг от друга пустошью, которая позже частично заросла; в рамках единого паркового пространства эта промежуточная территория превращена в зону семейного отдыха и досуга.
Территориальное расположение
Парк «Горкинско-Ометьевский лес» расположен в юго-восточной части Казани, на территории Советского района.
До 2015 года территория будущего парка была разделена административной границей двух районов: Ометьевский лес находился в составе Советского района, а Горкинский — в составе Приволжского; граница между районами в этом месте проходила в широтном направлении по пустоши, разделяющей оба лесных массива. В апреле 2015 года граница была отодвинута к югу и стала проходить по нечётной стороне улицы Братьев Касимовых, благодаря чему Горкинский лес вошёл в состав Советского района[1].
Парк «Горкинско-Ометьевский лес» находится в непосредственной близости от жилых районов Горки и Азино. Его территория ограничена: в северной части — улицей Родины и линией застройки домов средней этажности; на востоке — проспектом Победы и территориями двух медицинских учреждений — Республиканского центра крови, а также Республиканской инфекционной клинической больницы имени А. Ф. Агафонова; на юге — улицей Братьев Касимовых; в западной части — линией застройки жилого комплекса «Новые Горки» (территорией бывшего Казанского мясокомбината), а также территориями котельной, гаражных кооперативов и улицей Рихарда Зорге.
Площадь всей запроектированной парковой территории (с учётом участков перспективного освоения) составляет 87,42 га[2]. Площадь существующей парковой территории — 66,45 га[3].
Название
В названии парка «Горкинско-Ометьевский лес» объединены названий двух лесных массивов, из которых он состоит — Горкинский лес и Ометьевский лес. Названия же этих лесных массивов происходят от названий двух дореволюционных пригородных деревень — Горки и Аметьево (Ометьево), являющихся в настоящее время посёлками (жилыми массивами) в составе Казани. Можно предположить, что закрепление за лесными массивами названий этих деревень произошло в силу того, что данные леса находились в хозяйственном пользовании крестьян Горок и Аметьево (Ометьево) на правах лесных дач.
В Государственном архиве Республике Татарстан сохранился документ, косвенно подтверждающий права жителей села Горки на пользование Горкинским лесом.
«Протокол.
1927 г. октября 5 дня граждане с. Вознесенского Казанского района Харитонов Михаил и Павлов Иван задержаны гражданами с. Горки в лесу местного значения Горкинского общества, которые […] лес, на лошади гр-на с. Вознесенского Данилова Василия Алексеевича, который за угощение нанял порубить в Горкинском лесу воз хвороста молодняка, что Харитонов подтверждает своей подписью.
[Подпись]»[4]
- Вид на парк «Горкинско-Ометьевский лес» со стороны Горок (август 2019)
- Вид на парк «Горкинско-Ометьевский лес» со стороны Горок (ранний октябрь 2018)
- Вид на парк «Горкинско-Ометьевский лес» со стороны Горок (вторая половина октября 2018)
- Вид на парк «Горкинско-Ометьевский лес» со стороны Горок (конец октября 2019)
- Вид на парк «Горкинско-Ометьевский лес» со стороны Горок (декабрь 2019)
Особенности ландшафта, флора
В «Концепции развития (III очередь) Горкинско-Ометьевского леса» ландшафтные особенности парка описаны следующим образом:
«Рельеф территории Ометьевского леса преимущественно равнинный. Перепад высот расположен на длинных слабо пологих склонах юго-западного направления идущего к оврагу Горкинского леса.
Овраг проходит вдоль всей территории Горкинского леса (перепад высот оврага варьируется от 3 до 15 м) и представляет собой сбор талых и дождевых вод с близлежащих дорог. Овражная территория в данный момент находится в стадии эрозионно-аккумулятивных процессов, расползания склонов оврага и требует частичного берегоукрепления.
Основные породы деревьев: дуб, клён, липа. Степная растительность представлена различными полевыми травами…
Ометьевский лес представляет собой уникальную природную территорию с большим количеством редких деревьев и растений, некоторые из которых входят в Красную книгу.»[2]
- Парк «Горкинско-Ометьевский лес» в вечерних сумерках: вид со стороны Горок (июнь 2017)
- Парк «Горкинско-Ометьевский лес»: вид от главного входа в сторону проспекта Победы (июль 2019)
- Справа - граница территории парка «Горкинско-Ометьевский лес» вдоль проспекта Победы (июль 2019)
- Инсталляция, обозначающая границу парка «Горкинско-Ометьевский лес» на перекрёстке улицы Братьев Касимовых и проспекта Победы (июль 2019)
Аналогичная инсталляция у входа в парк «Горкинско-Ометьевский лес» со стороны улицы Родины (август 2019)
История
.png)
«Допарковый» период (до 2016 года)
Оба лесных массива, составляющих парк «Горкинско-Ометьевский лес», долгое время сохраняли неизменным свой природный облик и территориальный охват. Активное антропогенное воздействие началось в 1970-х годах в ходе строительства жилого района Горки. По этой причине сильно пострадал Горкинский лес, непосредственно соприкасавшийся с районом массового жилищного строительства.
На первом этапе частичной вырубке подверглась западная часть Горкинского леса, когда в первой половине 1970-х годов велась застройка 6-го микрорайона. Сначала был уничтожен длинный лесной «аппендикс», отходивший от западной оконечности Горкинского леса в юго-восточном направлении (он заканчивался несколько южнее нынешнего лицея № 83): его отрезали от основной части лесного массива улицей Братьев Касимовых, после чего полностью вырубили в ходе строительства жилых девятиэтажных домов. Затем западную оконечность Горкинского леса отрезали от основной части лесного массива широкой просекой, по которой позже проложили автодорогу, отходящую к северу от улицы Братьев Касимовых к котельной и территории гаражного кооператива.
.png)
На втором этапе Горкинский лес пострадал уже с восточной стороны, когда через его территорию проложили проспект Победы. Эта магистраль, уходившая от жилого района Горки в северном направлении, отрезала от лесного массива его восточную часть. В начале 1980-х годов от проспекта Победы в восточном направлении стали прокладывать будущую улицу Академика Завойского, которая разрезала теперь уже восточную часть Горкинского леса на два участка: северный участок оказался на закрытой территории водозабора «Танкодром», а южный участок превратился в рощу, позже названную Соловьиной. За оставшейся частью лесного массива (к западу от проспекта Победы) сохранилось его историческое название — Горкинский лес.
Ометьевский лес, напротив, в советский период особо не пострадал, сохранив свою территорию почти неизменной с дореволюционных времён.
.png)
И Горкинский лес, и Ометьевский лес до создания парка представляли собой заброшенные зелёные зоны, местами замусоренные бытовыми отходами, которые тем не менее в зимний период активно использовались любителями лыжного спорта (с 1980-х годов). Любителей летних прогулок, напротив, было не очень много, во многом по причине отсутствия благоустройства, прежде всего освещения, а также высокой криминогенности. Оба лесных массива, особенно Горкинский лес, являлись прибежищем асоциальных личностей. Кроме того, с 1990-х до середины 2010-х годов участок проспекта Победы в районе Горкинского и Ометьевского лесов в вечернее и ночное время являлся местом дислокации проституток.
В середине 2010-х годов оба лесных массива стали объектом повышенного внимания со стороны властей и общественности. В марте 2014 года Горкинский лес и Ометьевский лес получили статус особо охраняемой природной территории местного значения в составе ООПТ «Лебяжье»[5].
В 2015 году возник конфликт между общественностью и владельцами известной в Казани Клиники Нуриевых, планировавших начать строительство роддома на участке земли между двумя лесными массивами, рядом с Республиканской инфекционной клинической больницей имени А. Ф. Агафонова. На территории, которую предполагалось выделить под строительство, находилась стартовая площадка лыжной трассы. На состоявшихся 9 ноября 2015 года общественных слушаниях по вопросу выделения Клинике Нуриевых вышеуказанного участка земли любители лыжного спорта выступили против строительства, получив поддержку со стороны общественности[6]. В итоге было принято решение отказаться от строительства роддома в этом месте[7], предоставив Клинике Нуриевых участок земли на другой территории.
Общественный резонанс, порождённый данным конфликтом, дал импульс обсуждению вопроса о необходимости благоустройства Горкинского и Ометьевского лесов, тем более, что 2015 год был объявлен в Татарстане Годом парков и скверов[8]. В 2016 году был разработан проект реконструкции данной природной территории, результатом которой стало создание парка «Горкинско-Ометьевский лес».
Создание парка (2016 год)
Первые шаги по разработке проекта парка «Горкинско-Ометьевский лес» были предприняты весной 2016 года группой специалистов казанского бюро «Архитектурный десант» (руководитель проекта — Д. В. Толовенкова; главные архитекторы проекта — П. Медведев и А. Ярёменко). Идеологом проекта стала помощник президента Республики Татарстан Н. Л. Фишман Архивная копия от 6 июля 2019 на Wayback Machine, отвечающая за реализации действующей с 2015 года республиканской программы «Парки и скверы» Архивная копия от 14 июля 2019 на Wayback Machine. Именно с её подачи проект парка был вынесен на публичное обсуждение с целью учёта мнения общественности. Причём, в процессе взаимодействия с общественностью был реализован довольно оригинальный для Татарстана того времени вариант: сначала выясняли у граждан их предпочтения — каким они хотят видеть парк (апрель-май 2016 года[9][10]), а затем предложили на дополнительное обсуждение разработанный проект (июль 2016 года[11][12]).
«При разработке проекта Горкинско-Ометьевского леса одной из ключевых задач стало вовлечение жителей в процесс принятия проектных решений. Местные жители заполнили порядка трёх тысяч анкет, был проведён ряд опросов, интервью и фокус-групп с основными пользователями леса — лыжниками, велосипедистами и активистами, а также три общегородских проектных семинара.»[13]
Проведённое среди окрестных жителей анкетирование показало, что в Горкинском и Ометьевском лесах бывали 58 % граждан, ответивших на вопросы анкеты. В процессе анализа результатов анкетирования выявились их предпочтения в части благоустройства данной природной территории.
«Согласно опросам, одним из главных требований жителей стала безопасность для детей и взрослых. Неудивительно, ведь на границе лесистых зон стоят гаражи, леса не освещаются, на их территории можно заблудиться. Ещё одной потребностью жителей стало благоустройство лесного массива. Замусоренная территория, изрытая оврагами — малопривлекательное место для отдыха.»[14]
В контексте обсуждения вопроса реконструкции Горкинского и Ометьевского лесов сильное возражение общественности вызывали планы властей по строительству автодороги. Она должна была пройти через пустошь, разделяющая Горкинский и Ометьевский леса, в широтном направлении с выходом к проспекту Победы (впервые эта идея, пусть и в несколько иной конфигурации, была отражена в Генеральном плане Казани 1969 года). Однако представители общественности выступили против, посчитав нецелесообразным разделять асфальтированной дорогой единый природный каркас с двумя лесными массивами и пустошью. В проекте создания парка «Горкинско-Ометьевский лес», предложенном командой Н. Л. Фишман, идея строительства автодороги была окончательно отвергнута.
С учётом предложений и замечаний общественности проект был доработан, став по сути проектом первой очереди реконструкции Горкинского и Ометьевского лесов. По первоначальным оценкам, стоимость его реализации должна была составить 100 млн рублей[14]. Однако объём фактических затрат оказался намного выше. Если в декабре 2016 года называлась сумма свыше 160 млн рублей[15], то уже в июне 2017 года было заявлено, что стоимость первой очереди реконструкции составила 250 млн рублей, в том числе 47 млн рублей — это затраты на работы по укреплению Горкинского оврага[16]. При этом расходы республиканского бюджета составили 115 млн рублей[17], остальная часть — это средства инвесторов и меценатов. В 2016 году основным инвестором проекта выступила казанская компания ICL-КПО ВС[18].
В течение оставшегося летнего периода и осени 2016 года все основные работы в рамках первой очереди реконструкции были осуществлены. Преобразования охватили центральную зону будущего парка (пространство между Горкинским и Ометьевским лесами), а также частично сами лесные массивы. В числе прочих были построены главный вход со стороны проспекта Победы, вход со стороны улицы Братьев Касимовых, спортивная (лыжная) база, фонтан, детская площадка, пешеходный мост с W-образным оформлением над Горкинским оврагом, связывающий центральную часть парка с жилым районом Горки[16].
25 декабря 2016 года состоялось торжественное открытие парка «Горкинско-Ометьевский лес», в котором приняли участие президент Республики Татарстан Р. Н. Минниханов и мэр Казани И. Р. Метшин[19]. Жители Азино и Горок получили прекрасную зону отдыха, спортивного досуга и развлечений.
Общая схема реконструкции Горкинского и Ометьевского лесов (2016). Автор проекта: «Архитектурный десант» (г. Казань)
Концепция развития парковой территории (2017). Автор проекта: «Архитектурный десант» (г. Казань)
Схема поэтапной реконструкции парка (2017). Автор проекта: «Архитектурный десант» (г. Казань)
Схема лыжных маршрутов (2017). Автор проекта: «Архитектурный десант» (г. Казань)
Схема экологических маршрутов (2017). Автор проекта: «Архитектурный десант» (г. Казань)
Расширение паркового пространства (2017—2018 годы)
Презентация общественности проекта второй очереди реконструкции проходила в июне 2017 года уже на территории парка — в новом кафе «Лес». В рамках обсуждения были зафиксированы замечания граждан в отношении уже действовавших объектов, а также учтены их предложения по дальнейшему развитию паркового пространства. Тогда же была озвучена сумма затрат на реализацию второй очереди реконструкции — 300 млн рублей, с учётом средств, выделенных Татарстану в рамках федеральной программы по развитию общественных пространств[16]. Впрочем, позже последовало уточнение: на реализацию второй очереди реконструкции потратили 309 млн рублей, из которых 194,7 млн рублей составили расходы татарстанского бюджета, а 114,3 млн рублей — расходы федерального бюджета[20]. Территориальный охват в рамках второй очереди оказался более широким. В частности, были завершены ландшафтные работы, установлены стационарные арт-объекты с подсветкой, сделана входная группа в Ометьевский лес (на углу проспекта Победы и улицы Родины), сформированы маршруты для разных групп пользователей, в том числе экологические тропы, трассы для лыжников-профессионалов и лыжников-любителей[16], а также введены в строй памп-трек, скай-парк, площадка для выгула собак и другие объекты.
В марте 2018 года состоялась презентация и обсуждение проекта третьей очереди реконструкции. Это мероприятие также прошло в парке, в помещении Эко-центра «ДОМ», построенного на средства компании ICL-КПО ВС. В ходе обсуждения было заявлено, что на реализацию третьей очереди потратят 70 млн рублей[20][21].
По сообщению интернет-газеты «БИЗНЕС Online», был запланирован следующий объём работ:
«Всего в перечне работ оказалось 20 пунктов, в том числе открытие многофункционального центра CUBE из грузовых морских контейнеров, создание за экоцентром детского скалодрома, который зимой будет превращаться в ледодром, всесезонной горки-змейки, экологических троп с аншлагами, навигационных стендов. Предстоит прокладка тропинок с декоративной отсыпкой щепой, гравийным отсевом, лиственницу положат во входной зоне с улицы Братьев Касимовых, у экотроп сделают освещение и декоративную подсветку. Появятся теневые навесы на площадке для выгула собак, на детской игровой площадке.»[20]
%253DDSC_0285.jpg)
В целом большая часть задуманного была реализована, хотя скалодром, в том виде, как он был спроектирован[22], так и не был воплощён в реальность (упрощённый вариант скалодрома появился в скай-парке).
По завершении третьей очереди реконструкции работы в парке «Горкинско-Ометьевский лес» в целом прекратились. Преобразованием осталась не охвачена лишь западная часть Горкинского леса с третьим оврагом (протянулась вдоль улицы Братьев Касимовых) с оформлением входной группы со стороны улицы Рихарда Зорге. Эта зона определена как четвёртая очередь реконструкции, однако сроки проведения данных работ пока остаются неопределёнными.
В ходе встречи с общественностью в марте 2018 года помощник президента Республики Татарстан Н. Л. Фишман дала на этот счёт следующий ответ:
«Будем постепенно осваивать парк, дадим ему пожить и потом, уже в зависимости от того, как он будет развиваться, займемся третьим оврагом, — рассказала „БИЗНЕС Online“ помощник президента РТ Наталия Фишман. — Точно не могу сказать, когда мы им займемся. В этой ситуации мы должны быть меньше архитекторами и больше садовниками. „Разводить“ потоки лыжников с тюбингистами, создавать зоны для барбекю — это уже менее радикальные вмешательства.»[20]
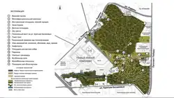
Планировочная структура, основные парковые объекты
Планировочная структура парка «Горкинско-Ометьевский лес» состоит из трёх функциональных зон. Территория Ометьевского леса с большим количеством редких деревьев и иных растений определена как зона экологии. Горкинский лес с овражным рельефом выделен в зону оздоровления и спорта. В центральной части парка (на месте бывшей пустоши, ныне частично заросшей древесной растительностью) сформирована зона семейного отдыха и досуга.
В рамках реконструкции первой очереди (2016 год) были сформированы большая часть зоны семейного отдыха и досуга, а также частично зона экологии и зона оздоровления и спорта. В ходе реконструкции второй и третьей очередей (2017—2018 годы) были завершены работы во всех трёх зонах.
Не охваченной преобразованиями западной части Горкинского леса (четвёртая очередь реконструкции) предварительно определена функциональная роль оздоровительной зоны.
- Арочная конструкция у главного входа в парк (июль 2019)
- Арт-объект «Шишки»: сосновая шишка изображена на эмблеме парка «Горкинско-Ометьевский лес» (июль 2019)
- Дуб - сердце леса (июль 2019)
- Арт-объект «Волк» (июль 2019)
- Арт-объект «Медведь» (август 2019)
Зона семейного отдыха и досуга
Эта центральная часть парка, начинающаяся от главного входа со стороны проспекта Победы (его главным элементом является семиметровая арочная конструкция) и протянувшаяся в западном направлении на расстояние 600—800 метров, то есть до линии застройки жилого комплекса «Новые Горки» и территории котельной. Зона семейного отдыха и досуга также выполняет связующую функцию между Горкинским и Ометьевскими лесами, поэтому здесь создана плотная сеть велосипедных и пешеходных дорожек, часть которых покрыта деревянным настилом.
В этой части парка расположена Спортивная база, включающая также пункт проката спортинвентаря и кафе «Лес». Напротив неё размещена Фестивальная зона в виде площади с деревянной сценой с арочными конструкциями; здесь проводятся различные мероприятия, например, фестиваль уличных культур. Рядом расположена та самая стартовая лыжная площадка, на месте которой планировалось построить Клинику Нуриевых; именно эта конфликтная площадка стала отправной точкой в реконструкции Горкинского и Ометьевского лесов. С другой стороны от Фестивальной зоны находится фонтан, обрамлённый Овальной площадью; фонтанная зона оформлена фонарями, символизирующими стебли травы с каплями росы. Далее расположена Круглая поляна с перголами, качелями и сеткой для детей, а за ней — детская площадка, выстроенная на разных уровнях, акцентированная знаковыми объектами в форме грибов, связь между которыми осуществляется с помощью сеточных переходов.
Детская площадка, которую также воспринимают как экологическую, была построена в 2017 году. Автором проекта является Архитектурное бюро «Чехарда».
«Концепция „экологической“ площадки между осинами — познание мира через природу. На „воздушном“ уровне дети могут гулять от дерева к дереву по канатным мостам, а внизу — „поляна исследований“, „сенсорный лабиринт“ и „переговорные трубы“. Пространство интересно с архитектурной точки зрения: гигантские грибы задают масштаб, соразмерный окружающим их деревьям. Таблички предупреждают: „Для детей от 5 до 15“, но подростки и взрослые обычно плюют на написанное.»[23]
- Спортивная база (июль 2019)
- Фестивальная зона (июль 2019)
- Стартовая лыжная площадка (июль 2019)
- Фонтан с фонарями в виде стеблей травы с каплями росы (июль 2019)
- Детская площадка (июль 2019)
Рядом находится Эко-центр «ДОМ» — объект площадью 250 кв. метров, открытый 26 декабря 2017 года как подразделение Городского детского эколого-биологического центра с целью проведения различных экологических мероприятий (развивающих, обучающих) для детей и молодёжи[24][25].
«Экоцентр представляет собой круглое одноэтажное здание с панорамной крышей, которое расположилось около детской игровой площадки. В здании — четыре кабинета, три из них — учебные, на 15 человек каждый. Ещё один — методический, для педагогов. В холле установлены мультитач-экраны с 3D-визуализацией лесопарка, в кабинетах — мощные компьютеры-моноблоки, ноутбуки, интерактивные доски. Специалисты мастерской „Архитектурный десант“ продумали проект до мелочей. Благодаря панорамным окнам в здании экоцентра создан эффект присутствия природы, а раздвижные стены позволяют менять размеры комнат под конкретные мероприятия. При этом само здание является образцом экологически чистого строительства: фасад украшен деревянными рейками, а главный вход сделан в виде портала из габионов, заполненных галькой. Экоцентр опоясывает лестница, по которой можно подняться на крышу, благодаря чему здание похоже на закрученную спиралевидную раковину.»[24]
Следует отметить один немаловажный факт, связанный с Эко-центром «ДОМ». В ходе подготовки визита в Казань президента России В. В. Путина, который состоялся 13 февраля 2019 года, данный объект рассматривался как одно из трёх возможных мест встречи главы государства с общественными активистами с целью обсуждения хода реализации национального проекта «Жильё и городская среда» (два других места — Университет Иннополис и Культурный центр «Московский» в казанском парке имени Урицкого). На первом этапе именно Эко-центру «ДОМ» оказывалось предпочтение, так как изначально встреча предполагалась в узком формате при участии не более 20 человек. Но позже было принято решение расширить число участников встречи примерно до 80 человек, включив сюда не только дополнительное количество общественных активистов, но и чиновников, ответственных за реализацию вышеуказанного национального проекта в республике. По этой причине более камерный Эко-центр «ДОМ» перестал удовлетворять требованиям. В итоге данное мероприятие прошло в более просторном помещении — в одном из залов Культурного центра «Московский»[26].
- Эко-центр «ДОМ» (июль 2019)
- Эко-центр «ДОМ»: лестница на смотровую площадку (июль 2019)
- Детская площадка для малолетних детей: вид с высоты Эко-центра «ДОМ» (июль 2019)
- Одна из пешеходных дорожек: вид с высоты Эко-центра «ДОМ» (июль 2019)
- Рядом с Эко-центром «ДОМ» разместили общественный огород (июль 2019)
С южной стороны от детской площадки и Эко-центра «ДОМ» расположились памп-трек и велотриал-площадка, а далее у границы парковой территории, рядом с котельной — огороженная сетчатым забором площадка для выгула собак. Севернее этих объектов находится Солнечная поляна — обширная лужайка для общего сбора, пикников, йоги, проведения мероприятий, отдыха; на ней также проводятся массовые концертные мероприятия. Рядом расположена всесезонная горка для детей, а также лежаки для приёма солнечных ванн.
Тут же находится Многофункциональный центр CUBE, построенный из морских грузовых контейнеров. Это точка притяжения молодёжи с различными интересами, в том числе интеллектуальными. Здесь находится небольшой зал под открытым небом с местами-лежаками для зрителей на нескольких уровнях, а также сценой и экраном. В этом месте проходят открытые лекции на различные темы — в живую, либо в видеоформате, мастер-классы и другие мероприятия. Дополнительным элементом является кофейня.
«В конце июня [2018 года] в Горкинско-Ометьевском лесу празднованием Дня молодёжи открылся контейнерный центр Cube: 16 больших и три маленьких грузовых морских контейнера, связанных между собой переходами. Помещения утеплены, в них проведено электричество, а при необходимости можно провести воду и канализацию… За концепцию проекта отвечает Павел Медведев, ведущий архитектор бюро „Архитектурный десант“. В основной части центра использовались сорокафутовые (12,192 метра в длину) контейнеры повышенной вместимости High Cube (класс контейнера) и несколько двадцатифутовых (6,096 метра в длину). Они сгруппированы между собой по принципу „лего“ — некоторые контейнеры разместили один на другом, какие-то поставили вертикально — и сварены. По словам архитектора, это почти новые контейнеры с Дальнего Востока; раньше в них перевозили грузы. Их купил подрядчик, который благоустраивает Горкинско-Ометьевский лес.»[27]
К северу от центра CUBE, ближе к выходу на улицу Родины находится зона отдыха «Грибница».
На всей территории зона семейного отдыха и досуга расположены информационные стенды с картами парка, а в некоторых местах установлены различные арт-объекты — зеркальные медведь и волк, металлические шишки и др.
- Памп-трек (июль 2019)
- Солнечная поляна (июль 2019)
- Всесезонная горка на Солнечной поляне (июль 2019)
- Многофункциональный центр CUBE (июль 2019)
- Зона отдыха «Грибница» (август 2019)
Зона оздоровления и спорта
Эта зона расположена в Горкинском лесу и ориентирована на активные виды спорта. Важным элементом является используемая в зимний период лыжная трасса, часть которой проходит по руслу расположенного в лесу оврага. В летний период эта трасса может использоваться любителями велопрогулок. На северной окраине Горкинского леса, недалеко от Спортивной базы расположена площадка для воркаута. В другой части Горкинского леса, рядом с территорией котельной, находится Скай-парк.
Через Горкинский лес проходит пешеходная дорожка, связывающая центральную часть парка с выходом на улицу Братьев Касимовых. Поскольку в этом месте овражный рельеф, большая часть данной дорожки проходит по извилистому пешеходному мосту, который на одном из участков имеет W-образное оформление.
- Участок лыжной трассы в овраге Горкинского леса (июль 2019)
- Скай-парк (июль 2019)
- Скалодром в скай-парке (июль 2019)
Пешеходный мост с W-образным оформлением в Горкинском лесу (июль 2019)
Вход в Горкинский лес со стороны Горок (ул. Братьев Касимовых) (июль 2019)
Зона экологии
Эта зона расположена Ометьевском лесу, обладающем богатым растительным миром. Здесь нет мест для активного времяпровождения, это территория тихих лесных прогулок, место созерцания природы. Поэтому Ометьевский лес изрезан многочисленными лесными тропинками, местами достаточно широкими. Некоторые тропинки выложены деревянным настилом.
На одной из полян Ометьевского леса расположен арт-объект в виде зеркальных четырёхгранных столбов. Это так называемая зона восприятия «Природа».
Вдоль тропинок Ометьевского леса установлены стенды с информацией о растительном и животном мире казанских парков.
- Одна из пешеходных дорожек в Ометьевском лесу (июль 2019)
- Развилка пешеходных дорожек в Ометьевском лесу (июль 2019)
- Поваленное дерево в Ометьевском лесу (август 2019)
- Ометьевский лес: арт-объект в зоне восприятия «Природа» (июль 2019)
- Стенд в Ометьевском лесу с информацией на русском и татарском языках (июль 2019)
Повседневная жизнь парка
Управление парком
Парк «Горкинско-Ометьевский лес» находится под управлением Муниципального бюджетного учреждения «Дирекция парков и скверов г. Казани» Архивная копия от 29 июня 2019 на Wayback Machine.
Посещаемость
В казанских СМИ неоднократно публиковали информацию о количестве посетителей парка «Горкинско-Ометьевский лес» за различные периоды времени. Однако степень достоверности этих цифр следует признать относительной. Нельзя исключать, что данные показатели носят несколько завышенный характер, в том числе с целью привлечения потенциальных инвесторов для развития парковой инфраструктуры. Тем не менее, это не противоречит очевидному факту — парк «Горкинско-Ометьевский лес» стал весьма популярным местом отдыха и досуга для жителей близлежащих районов Казани.
Так, в июне 2017 года ответственный за культурные мероприятия в «Горкинско-Ометьевском лесу» С. Галеев сообщил, «что со дня открытия в декабре 2016 года парк посетило около полумиллиона человек (подсчёт проводился с помощью видеокамер). Например, в выходной день при хорошей погоде в парке бывает 4 — 6 тыс. человек.»[17]
В марте 2018 года руководитель Дирекции парков и скверов Казани А. Саетова заявила, что «летом прошлого [2017] года посещаемость парка была временами выше, чем у парка им. Горького, а всего в 2017 году его посетили 1,5 млн человек (по данным камер видеонаблюдения). В выходные и в дни проведения массовых мероприятий парк в среднем посещают 5-6 тыс. человек, летом в обычные дни — 2-2,5 тыс. человек.»[20]
- Велосипедисты у стенда с картой парка (июль 2019)
Вход в Ометьевский лес со стороны перекрёстка проспекта Победы и улицы Родины (июль 2019)- Многофункциональный центр CUBE: вид со стороны кофейни (июль 2019)
- Дизайнерская скамейка у Многофункционального центра CUBE (июль 2019)
- «Одуванчики» в парке «Горкинско-Ометьевский лес» (август 2019)
Примечания
- ↑ См.: Закон Республики Татарстан от 25 апреля 2015 года N 30-ЗРТ «О границах районов в городе Казани»: http://docs.cntd.ru/document/428550885 Архивная копия от 14 апреля 2019 на Wayback Machine
- 1 2 См.: Концепция развития (III очередь) Горкинско-Ометьевского леса, г. Казань: https://www.kzn.ru/upload/iblock/8e0/Kazan_Kontseptsiya_razvitiya_Gorkinsko_Ometevskogo_Lesa_III_ochered.pdf Архивная копия от 6 июля 2019 на Wayback Machine
- ↑ См.: Перечень парков, осуществляющих деятельность под управлением Дирекции парков и скверов города Казани: https://www.kzn.ru/meriya/ispolnitelnyy-komitet/mku-direktsiya-parkov-i-skverov/perechen-parkov/ Архивная копия от 29 июня 2019 на Wayback Machine
- ↑ Государственный архив Республики Татарстан. Фонд Р-1911. Опись 1. Дело 10. Лист 53.
- ↑ См.: Постановление Исполнительного комитета г. Казани от 27 марта 2014 года N 1653 «О внесении изменений в постановление Исполнительного комитета г. Казани от 31.07.2009 N 6384»: http://docs.cntd.ru/document/432900740 Архивная копия от 6 июля 2019 на Wayback Machine
- ↑ См.: Набиуллина Л. Как роддом братьев Нуриевых попал на скользкую дорогу// БИЗНЕС Online, 11 ноября 2015: https://www.business-gazeta.ru/article/145127 Архивная копия от 6 июля 2019 на Wayback Machine
- ↑ См.: Строительства в Горкинско-Ометьевском лесопарке не будет: http://www.sobaka.ru/kzn/city/city/41762 Архивная копия от 6 июля 2019 на Wayback Machine
- ↑ См.: Указ Президента Республики Татарстан «Об объявлении 2015 года в Республике Татарстан Годом парков и скверов»: http://kitaphane.tatarstan.ru/rus/parks/ukaz.htm Архивная копия от 6 июля 2019 на Wayback Machine
- ↑ См.: Янькова Т. Казанцы не хотят, чтобы Горкинско-Ометьевский лес «побрили» за 115 миллионов// Вечерняя Казань, 26 апреля 2016: http://www.evening-kazan.ru/articles/kazancy-ne-hotyat-chtoby-gorkinsko-ometevskiy-les-pobrili-za-115-millionov.html Архивная копия от 6 июля 2019 на Wayback Machine
- ↑ См.: Горкинско-Ометьевский лес открыт: http://park.tatar/open-go-wood Архивная копия от 6 июля 2019 на Wayback Machine
- ↑ См.: Янькова Т. Горкинско-Ометьевский в Казани обещают не рубить напрасно// Вечерняя Казань, 21 июля 2016: http://www.evening-kazan.ru/articles/gorkinsko-ometevskiy-les-v-kazani-obeshchayut-ne-rubit-naprasno.html Архивная копия от 6 июля 2019 на Wayback Machine
- ↑ См.: Итрын Н. Горкинско-Ометьевский лес всё-таки станет рекреационной зоной. Проектировщики показали, что здесь будет построено// Kazanfirst, 21 июля 2016: https://kazanfirst.ru/articles/317771 Архивная копия от 6 июля 2019 на Wayback Machine
- ↑ См.: https://vk.com/kazanles Архивная копия от 10 июня 2019 на Wayback Machine
- 1 2 Наталия Фишман пообещала сохранить в Горкинско-Ометьевском лесу все деревья// Inkazan.ru, 16 июля 2016: https://inkazan.ru/news/city/21-07-2016/nataliya-fishman-poobeschala-sohranit-v-gorkinsko-ometievskom-lesu-vse-derevya Архивная копия от 8 июля 2019 на Wayback Machine
- ↑ См.: Иванова К. Впервые за 50 лет в Казани появился не реконструированный, а возведенный с нуля парк: Горкинско-Ометьевский лес// Kazanfirst, 26 декабря 2016: https://kazanfirst.ru/articles/357880 Архивная копия от 8 июля 2019 на Wayback Machine
- 1 2 3 4 См.: Горожанинова М. Казанцы не желают пускать торговцев в Горкинско-Ометьевский лес: «Зачем нам ещё один парк Горького?»// Реальное время, 22 июня 2017: https://realnoevremya.ru/articles/68702-v-gorkinsko-ometevskom-lesu-obsudili-vtoruyu-ochered-rabot Архивная копия от 8 июля 2019 на Wayback Machine
- 1 2 Скрябин И., Макасина Р. Горкинский лес 2.0: «Проблема с алконавтами, которые шашлыки гоняют!»// БИЗНЕС Online, 22 июня 2017: https://www.business-gazeta.ru/article/349395 Архивная копия от 8 июля 2019 на Wayback Machine
- ↑ См.: ICL-КПО ВС стало инвестором проекта благоустройства Горкинско-Ометьевского леса// Inkazan.ru, 17 августа 2016: https://inkazan.ru/news/city/17-08-2016/icl-kpo-vs-stalo-investorom-proekta-blagoustroystva-gorkinsko-ometievskogo-lesa Архивная копия от 8 июля 2019 на Wayback Machine
- ↑ См.: Набиуллина Л., Кузнецов А. Горкинско-Ометьевский лес 2.0: каким стал первый за 50 лет новый парк Казани?// БИЗНЕС Online, 26 декабря 2016: https://www.business-gazeta.ru/article/332991 Архивная копия от 6 июля 2019 на Wayback Machine
- 1 2 3 4 5 Скрябин И. Наталия Фишман: «Главное, чтобы не было этих шашлычниц! „Лебяжье № 2“ устраивать не хочется!»// БИЗНЕС Online, 7 марта 2018: https://www.business-gazeta.ru/article/374847#4 Архивная копия от 8 июля 2019 на Wayback Machine
- ↑ См.: Кривопатре Е. В 2018 году стартует третья очередь благоустройство лесопарковой зоны// Татар-информ, 6 марта 2018: https://www.tatar-inform.ru/news/2018/03/06/601085/ Архивная копия от 8 июля 2019 на Wayback Machine
- ↑ См.: В Горкинско-Ометьевском лесу в Казани появится скалодром и горка-змея// Tatcenter, 7 марта 2018: http://tatcenter.ru/news/v-gorkinsko-ometevskom-lesu-v-kazani-poyavitsya-skalodrom-i-gorka-zmeya/ Архивная копия от 8 июля 2019 на Wayback Machine
- ↑ Юсупов С. Урбанистика на вырост. Девять лучших игровых площадок Татарстана// ИНДЕ: интернет-журнал о жизни в городах Республики Татарстан, 14 марта 2018: https://inde.io/article/11044-urbanistika-na-vyrost-devyat-luchshih-igrovyh-ploschadok-tatarstana Архивная копия от 25 августа 2019 на Wayback Machine
- 1 2 Эко-центр «Дом» в парке Горкинско-Ометьевский лес, Казань: http://kidsafisha.com/places/eko-centr-dom-v-parke-gorksinsko-ometevskiy-les-kazan Архивная копия от 7 июля 2019 на Wayback Machine
- ↑ См.: Информация об Экоцентре «ДОМ»: https://edu.tatar.ru/sovetcki/page2455.htm/page3562807.htm Архивная копия от 7 июля 2019 на Wayback Machine
- ↑ См.: Ширшова В. Путин в Казани: «Нельзя затягивать с решением проблем людей»// Реальное время, 13 февраля 2019: https://realnoevremya.ru/articles/129470-itogi-vizita-putina-v-kazan-v-kommentariyah-tatarstancev Архивная копия от 7 июля 2019 на Wayback Machine
- ↑ Юсупов С. Новое место. Контейнерный центр Cube в Горкинско-Ометьевском лесу// ИНДЕ: интернет-журнал о жизни в городах Республики Татарстан, 20 июля 2018: https://inde.io/article/14357-novoe-mesto-konteynernyy-tsentr-cube-v-gorkinsko-ometievskom-lesu Архивная копия от 8 июля 2019 на Wayback Machine

